PRESENT AND FUTURE OF MOBILITY

Electric cars are an unstoppable trend due to several factors. Firstly, there is an increased awareness of the need to reduce greenhouse gas emissions and combat climate change, which has led to a greater demand for more environmentally friendly vehicles.

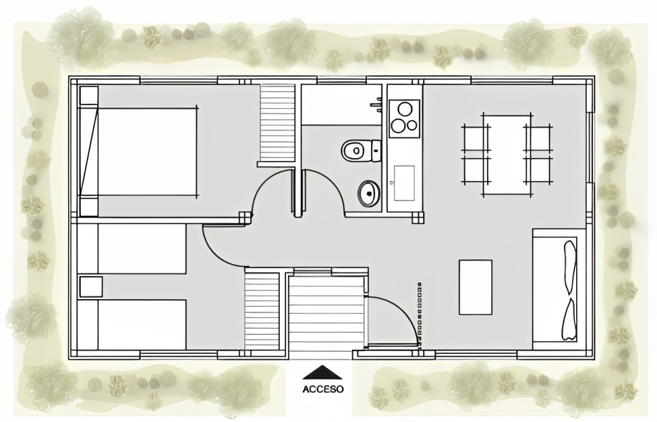
Our Solarhouse features a modular design, made up of a robust 3×3 meters steel skeleton grid structure. This grid consists of prefabricated columns and beams, assembled with custom connector elements, forming the backbone of our homes. Prefabricated wall, window, floor, and roof elements are seamlessly integrated into this skeleton, enabling the construction of houses of various shapes and forms within the 3×3 meters grid. In fact, with just six of these grid elements, we can create a spacious 6×9 meters bungalow home encompassing 54 square meters. Leveraging our prefabricated elements, such bungalows can be erected on-site within 24 hours on a given concrete slab or environmentally friendly screw piles foundation.

The flooring is composed of sandwich elements, coated with tiles or other floor coverings of your choice. The sides can feature any mix of wall, window, or door elements, adaptable to climatic conditions and cultural requirements. Our designs can even incorporate verandas. The walls are typically composed of an outer and inner panel, filled with a special, environmentally friendly lime foam, a technology patented by SWC. A typical Solarhouse bungalow includes a family bathroom equipped with a bathtub, sink, and toilet.

Embracing Sustainability and Ecological Balance

Our Solarhouses stand as a testament to our unique approach to ecological and sustainable building. They feature unparalleled solar energy collection technology, offering a practical solution to the age-old problem of balancing human needs with environmental preservation.

The Erosol Solarhouse® doesn’t just passively exist in an environment, it enhances it. Our solar houses are designed to transform barren land into thriving eco-villages of self-sustaining houses, nestled amidst flourishing gardens. Not only do our houses generate electricity and heat from the sun, but they can also collect water from atmospheric moisture, which is stored and recycled for drinking, cooking, washing, and irrigating the surrounding permaculture-style gardens.

We have a firm commitment to decentralized waste water treatment. Each of our buildings incorporates cutting-edge water recycling technology, negating the need for a costly village-wide sewerage system. Additionally, we anticipate that Solarhouse roofs will produce 30% more electricity than the house’s heating, cooling, and lighting needs, providing a surplus that can be sold back into the electric grid, thus recouping the investment in the building over time.

To ensure affordability and widespread adoption, we’ve established Coop Solartec, a production and sales cooperative in Valencia, Spain. We are also in the process of setting up a prefabrication factory in the Alicante region, further reducing our production costs.

Introducing Erosol Solarhouse Eco-Villages

Beyond individual homes, we envision entire communities powered by renewable energy. We offer Erosol Solarhouses in large numbers to build Solarhouse Eco-Villages, where alltransport, including taxi and shuttle services as well as agricultural machinery, is electric. By producing all the necessary electricity, we aim to reduce noise, cut CO₂ emissions, and lower costs.

In these villages, all organic waste becomes part of a circular economy: it’s transformed into humus and fertile black soil, which can retain more rainwater than regular soil. Combined with our innovative leaf fertilizers, certified for organic farming, we can reduce water usage in crop production by up to 30% while increasing harvest by up to 25%.

Our Vision of Affordability

We have a unique model to make these ambitious eco-villages affordable. Our Solarhouse Eco-Villages are not only energy self-sustaining but also help reduce atmospheric carbon dioxide by storing it in the soil as humus, thanks to their permaculture gardens. (Image: A flourishing permaculture garden)

This qualifies them for United Nations Framework Convention on Climate Change (UNFCCC) projects, which generate carbon dioxide certificates. These can be sold in carbon emissions trading, providing significant funding for the construction of Erosol Solarhouses. As a result, these houses can be built at a fraction of the cost of comparable quality houses, and they will fully amortize just from the electricity they produce. (Image: UNFCCC certificate and Solarhouse)

Contact

SOLARTEC WORLD COMPANY, S.L.

Avenida del País Valenciano, 18

03507 Finestrat

Alicante, Valencia, Spain

https://solartec.co

Tel.: +34 644 31 14 70

Errol Pastrana (President), Hans Christoph Knop (CEO)

SOLARTEC WORLD COMPANY, S.L. © All Rights Reserved 2023

Scroll to Top